Services

Our Offering Services:

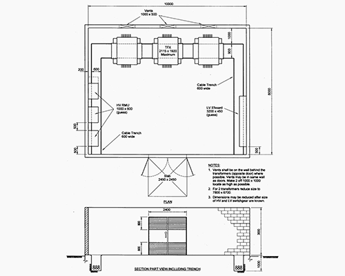
1. Electrical Design Engineering

a. Single Line Diagrams (SLDs)
b. Electrical Layouts & Schematics
c. Bills of Quantities (BOQs) & Material Specifications
d. Equipment Sizing & Selection
e. Panel Board & Switchgear Design
f. Lighting & Small Power Design
g. Cable Routing & Tray Layouts
h. Earthing & Lightning Protection Design

2. Power system Studies

a. Short Circuit Analysis
b. Load Flow Analysis
c. Protection Coordination
d. Arc Flash Hazard Analysis
e. Motor Starting Studies
f. Harmonic Analysis & Mitigation
g. Grounding System Analysis
h. Reliability & Contingency Studies

3. Professional Engineering Services

a. Pre-FEED (Front-End Engineering Design)
b. Detailed Engineering & Drafting
c. EPC Project Support
d. Engineering Documentation & Review
e. Site Surveys & Data Collection
f. As-Built Documentation

4.  Maintaienence & Testings of LV /MV / HV all kinds of Electrical Equipment’s include Transformers, Motors, Air Circuit Breakers, Vaccum Circuit Breakers, SF6 Circuit Breakers, Switchgear Panels, CT, PT, Numerical relays, Changeover switches, APFC panels.
5.  Electrical & Automation Engineering Designing & Projects Execution
6. Industrial Training Skill development programme for Diploma /B-Tech (E.E.E) Final year Students.
7. All Kinds of LV, MV, HV Circuit Breakers, relays retrofitting services.
8. Project Upgradations and Re- Engineering services.
9. Electrical Statutory Laisioning works.
10. HT & LT Motors vibration and Thermography Analysis of static and rotating equipment’s

11. Special Engineering Additional services provides to all continuous / Non continuous process industries details as follows,

A. Provide Complete Technical assistance for Annual shutdown, Turnaround maintenance services.
B. Electrical Technical on job trainings at your works office.
C. Provide the electrical technical and safety documentation supports like preparations of Standard maintenance & Operating procedures of each installed switchgears, Hazard Identification risk assessment of all Electrical Equipment’s
D. Operation risk mitigation procedures (ORMP)
E. Failure impact and Critical analysis reports
F. Provide the Check lists like LLF (Look Listen Feel) and preventive / corrective maintenance of each switchgear (Transformers, Generators, Motors, Switch board)
G. Provide the standard Changeover procedures of Grid to EDG, TG etc
H. Spare Parts Management
I. Data management system includes plant technical documents like Electrical Equipment datasheets, GA Drawings, Maintenance and, Root cause Analysis reports, Critical Spares Technical documents etc… Will be imported to one drive. You may download softcopy any time as per your convenient.
J. Provide daily, monthly, semi-annual and annual maintenance Planning and schedules
K. Maintain and drive your Electrical System towards ISO standards & Safety regulation norms